Barndominium 530
*Photographs may show modified designs
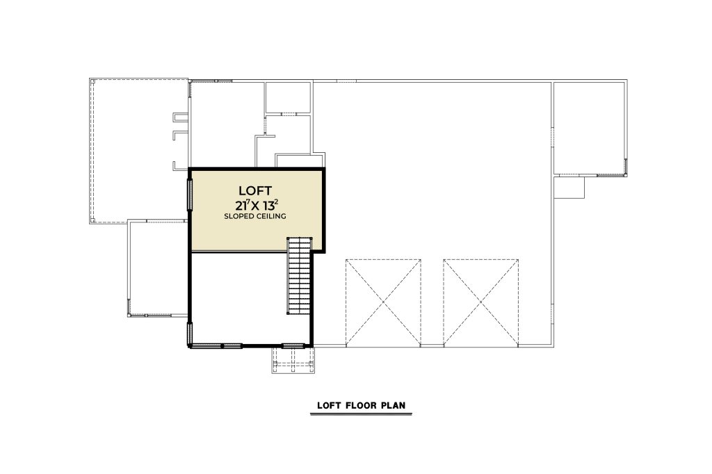
Plan Information
Square Footage
Foundation Type: Slab
Roof Details
Beds & Baths
Exterior Walls: 2x6
Dimensions
We understand the complexity of building a home. Don't worry, we have you covered. Your plan will include:
Single PDF Plan Set:
A complete set of working drawings delivered in a PDF digital format. The PDF files come with a license to build one home.
Digital Study Set:
A full set of copyrighted house plans intended for only review purposes. Stamped “NOT FOR CONSTRUCTION”, this set does include a building license and cannot be copied. To build from the plans, you can upgrade to 5 or 8 sets, a reproducible PDF, or CAD version. A one-set purchase toward the upgrade will be credited to you if you select one of these options.
5 Sets + PDF:
Five printed sets and a digital PDF set of construction documents with copyright release and a single license to build.
CAD Single Build:
This plan is AutoCAD designed in .dwg format which is preferred by builders. It is delivered digitally and includes a copyright release giving you legal permission to make changes, print unlimited sets, and build from it.




















